Login

 
Eengezinswoning
Landmetersweg 97, Den Helder
Huurprijs: € 920,31 per maand
Overgebleven tijd om te reageren
6 dagen
Aantal reacties
62
Uw positie
Onbekend
Type
Eengezinswoning
Slaapkamers
3
Bouwjaar
1968
Oppervlakte
92.8 m2
housePhoto
housePhoto
housePhoto
housePhoto
Woningkenmerken
Grote tuin
Berging extern
Verwarming & energie
Elektrisch koken
Zonnepanelen
CV combiketel
Extra’s
Thermostatische douchekraan
Extra toilet in badkamer
Vrijhangend toilet
Vlizotrap naar bergzolder

Beschrijving

Advertentie
Advertentienummer: 2026031317
Methode Toewijzen: Zoekrecht
Verwachte verhuurdatum: 04 juni 2026
Reageren t/m: 19 maart 2026
Corporatie:
Details
Betreft: Eengezinswoning
Type woning: Eengezinswoning
Energielabel: Energieklasse A
Kosten
Huurprijs (netto): € 912,50
Servicekosten: € 7,81
Huurprijs (bruto): € 920,31
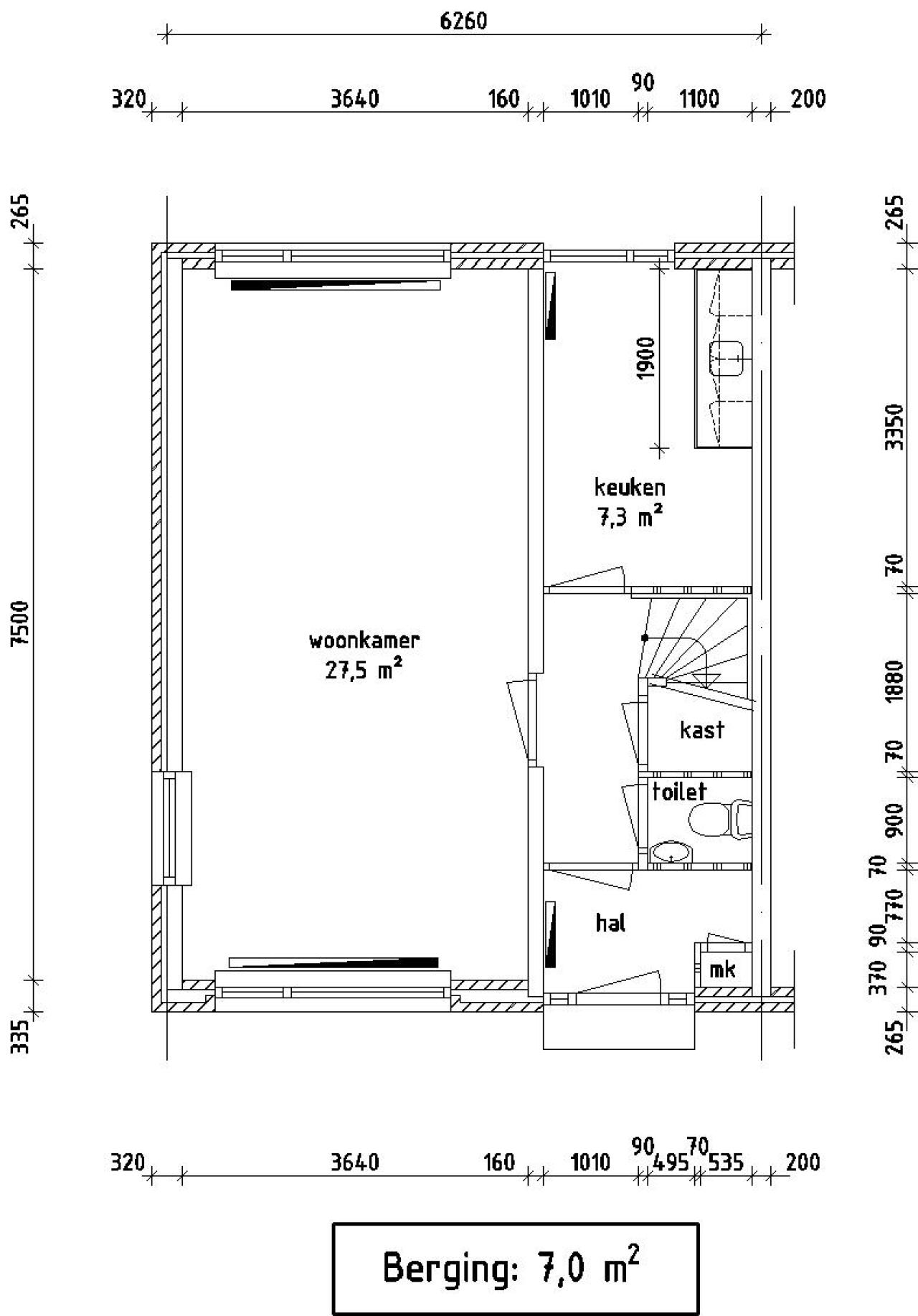
Indeling
Slaapkamer-1: 14.50 m2
Slaapkamer-2: 12.20 m2
Woonkamer-1: 27.50 m2
Keuken-1: 7.30 m2
Badkamer-1: 4.80 m2
Berging-1: 7.00 m2
Zolder-1: 12.90 m2
Slaapkamer-3: 6.60 m2

Totale oppervlakte: 92.80 m2


Elektrisch koken

Elektrisch koken van toepassing: koken met gas niet mogelijk.


Zonnepanelen

Deze woning is voorzien van zonnepanelen.


Aanvragen Inkomensverklaring

Indien u in aanmerking komt voor een huurwoning heeft u een inkomensverklaring nodig van de Belastingdienst van uzelf en indien van toepassing van uw partner over het jaar 2024/2025 of een definitieve of voorlopig aanslagbiljet over het jaar 2024/2025.

Om teleurstelling bij toewijzing te voorkomen adviseren wij u in verband met de levertijd nu al deze inkomensverklaring aan te vragen bij de Belastingdienst tel. 0800-0543. Bij toewijzing wordt geen uitstel verleend voor het aanvragen van een inkomensverklaring.


 
 
REAGEREN
U moet eerst inloggen om te kunnen reageren. Heeft u nog geen account?
Schrijf u dan snel in.