Login

 
Seniorenwoning
Elzenstraat 14, Den Helder
Huurprijs: € 546,02 per maand
Overgebleven tijd om te reageren
6 dagen
Aantal reacties
8
Uw positie
Onbekend
Type
Seniorenwoning
Slaapkamers
1
Bouwjaar
1969
Oppervlakte
44.2 m2
housePhoto
housePhoto

Voorwaarden en/of vereisten

Eisen aan de leeftijd
Voor deze woning geldt een minimale, of maximale leeftijd
Minimaal 65 jaar (Verplicht)
Woningkenmerken
Berging intern
Open keuken
Tuin
Verwarming & energie
Elektrisch koken
CV combiketel
Extra’s
Thermostatische douchekraan

Beschrijving

Advertentie
Advertentienummer: 2026030408
Methode Toewijzen: Zoekrecht
Verwachte verhuurdatum: 06 mei 2026
Reageren t/m: 10 maart 2026
Corporatie:
Details
Betreft: Seniorenwoning
Type woning: Seniorenwoning
Energielabel: Energieklasse D
Kosten
Huurprijs (netto): € 538,21
Servicekosten: € 7,81
Huurprijs (bruto): € 546,02
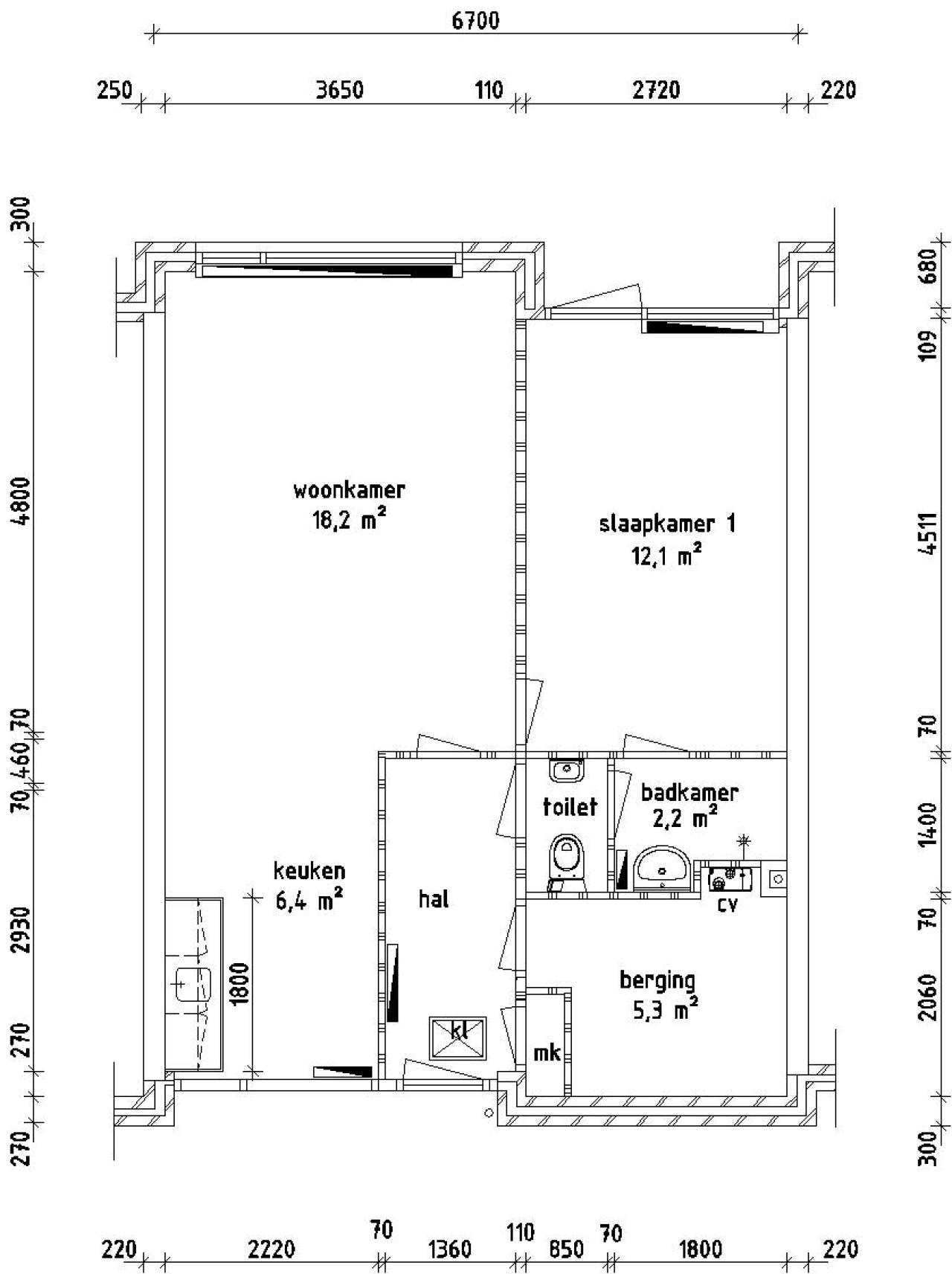
Indeling
Slaapkamer-1: 12.10 m2
Woonkamer-1: 18.20 m2
Keuken-1: 6.40 m2
Badkamer-1: 2.20 m2
Berging-1: 5.30 m2

Totale oppervlakte: 44.20 m2


Elektrisch koken 

Elektrisch koken van toepassing: koken met gas niet mogelijk.


Aanvragen inkomensverklaring

Indien u in aanmerking komt voor een huurwoning heeft u een inkomensverklaring nodig van de Belastingdienst van uzelf en indien van toepassing van uw partner over het jaar 2024/2025 of een definitieve of voorlopig aanslagbiljet over het jaar 2024/2025.

Om teleurstelling bij toewijzing te voorkomen adviseren wij u in verband met de levertijd nu al deze inkomensverklaring aan te vragen bij de Belastingdienst tel. 0800-0543. Bij toewijzing wordt geen uitstel verleend voor het aanvragen van een inkomensverklaring.


 
 
REAGEREN
U moet eerst inloggen om te kunnen reageren. Heeft u nog geen account?
Schrijf u dan snel in.