Login

 
Appartement 4e Etage met lift
Cornelis Gerritsz Geusstraat 162, Den Helder
Huurprijs: € 874,90 per maand
Overgebleven tijd om te reageren
5 dagen
Aantal reacties
13
Uw positie
Onbekend
Type
Appartement 4e Etage met lift
Slaapkamers
3
Bouwjaar
1971
Oppervlakte
80.3 m2
housePhoto
housePhoto

Voorwaarden en/of vereisten

Eisen aan de leeftijd
Voor deze woning geldt een minimale, of maximale leeftijd
Minimaal 65 jaar (Verplicht)
Woningkenmerken
Balkon
Berging extern
Gelijkvloers
Lift
Verwarming & energie
Elektrisch koken
Collectief gestookt
Extra’s
Intercom
Thermostatische douchekraan

Beschrijving

Advertentie
Advertentienummer: 2025102807
Methode Toewijzen: Zoekrecht
Verwachte verhuurdatum: 15 januari 2026
Reageren t/m: 03 november 2025
Corporatie:
Details
Betreft: Appartement 4e Etage met lift
Type woning: Appartement 4e Etage met lift
Energielabel: Energieklasse D
Kosten
Huurprijs (netto): € 682,96
Servicekosten: € 191,94
Huurprijs (bruto): € 874,90
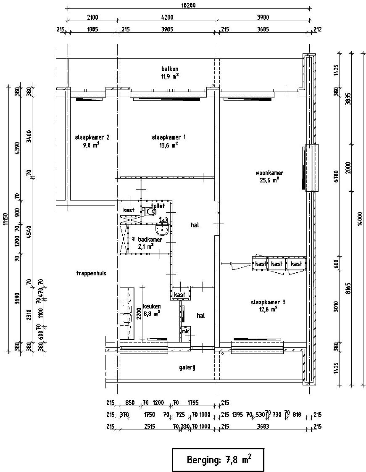
Indeling
Slaapkamer-1: 13.60 m2
Slaapkamer-2: 9.80 m2
Woonkamer-1: 25.60 m2
Keuken-1: 8.80 m2
Badkamer-1: 2.10 m2
Berging-1: 7.80 m2
Slaapkamer-3: 12.60 m2

Totale oppervlakte: 80.30 m2


Elektrisch koken van toepassing: koken met gas niet mogelijk.


In de servicekosten is een voorschotbedrag opgenomen voor gasverbruik.


In de servicekosten is een voorschotbedrag opgenomen voor waterverbruik.


Indien u in aanmerking komt voor een huurwoning heeft u een inkomensverklaring nodig van de belastingdienst van uzelf en indien van toepassing van uw partner over het jaar 2023/2024 of een definitieve of voorlopig aanslagbiljet over het jaar 2023/2024. Om teleurstelling bij toewijzing te voorkomen adviseren wij u in verband met de levertijd nu al deze inkomensverklaring aan te vragen bij de belastingdienst tel. 0800-0543. Bij toewijzing wordt geen uitstel verleend voor het aanvragen van een inkomensverklaring.


 
 
REAGEREN
U moet eerst inloggen om te kunnen reageren. Heeft u nog geen account?
Schrijf u dan snel in.