Login

 
Eengezinswoning
IJsselmeerstraat 204, Den Helder
Huurprijs: € 710,16 per maand
Overgebleven tijd om te reageren
6 dagen
Aantal reacties
6
Uw positie
Onbekend
Type
Eengezinswoning
Slaapkamers
1
Bouwjaar
2025
Oppervlakte
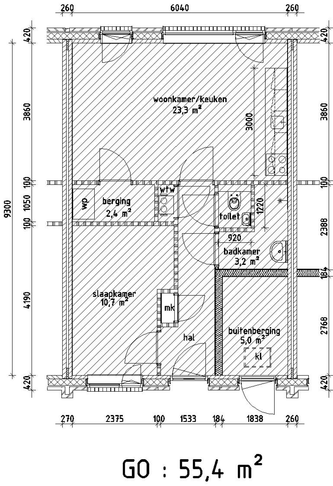
44.6 m2
housePhoto
housePhoto

Voorwaarden en/of vereisten

Aantal personen in uw huishouden
Voor deze woning geldt een minimale of maximale huishoudgrootte. Voor uw huishoudgrootte tellen u, uw eventuele partner, uw eventuele kinderen, en eventuele andere inwonende bewoners mee.
Maximaal 2 person(en) (Verplicht)
Eisen aan de leeftijd
Voor deze woning geldt een minimale, of maximale leeftijd
23 t/m 27 jaar (Verplicht)
Woningkenmerken
Berging extern
Berging intern
Gelijkvloers
Open keuken
Tuin
Verwarming & energie
Aardgasvrije woning
Vloerverwarming
Energieneutraal
Elektrisch koken
Warmtepomp
Zonnepanelen
Extra’s
Vrijhangend toilet
Thermostatische douchekraan

Beschrijving

Doelgroep

De woningen zijn bedoeld voor jongeren van 23 tot en met 27 jaar. Huurders krijgen een jongerencontract van vijf jaar, waarbij hun inschrijving bij Woonmatch behouden blijft – zo sparen zij door voor meer punten. Na vijf jaar komt de woning beschikbaar voor een nieuwe jongere.

Intakegesprek

De woningen zijn gebouwd in een hofje. Wonen in een hofje betekent meer dan alleen een dak boven je hoofd. Het is een woonvorm die uitnodigt tot ontmoeting, betrokkenheid en samenleven. De opzet van een hofje – met woningen rondom een gezamenlijke buitenruimte – biedt een unieke kans om een hechte gemeenschap te vormen waarin buren elkaar kennen, helpen en samen zorgen voor een prettige leefomgeving.

Het doel is om bewoners actief te betrekken bij hun woonomgeving en elkaar. Dit begint al bij het intakegesprek, waarin motivatie, betrokkenheid en inzet voor de buurt worden besproken. Zo wordt niet alleen gekeken naar woonwensen, maar ook naar de bereidheid om bij te dragen aan een leefbare wijk.

Tekenen huurovereenkomst

Bij een geschikte kandidaat volgt eerst een intakegesprek met Wijkbeheer op 3 en 4 december. Is het gesprek positief? Dan wordt op maandag 8 december de huurovereenkomst op locatie getekend.

De huurprijzen zijn vastgesteld op € 682,96. Naast de huur zijn er ook algemene kosten voor Abonnee Onderhoud, glasfonds, huismeester en tuinonderhoud. 

Advertentie
Advertentienummer: 2025111004
Methode Toewijzen: Zoekrecht
Verwachte verhuurdatum: 08 december 2025
Reageren t/m: 16 november 2025
Corporatie:
Details
Betreft: Eengezinswoning
Type woning: Eengezinswoning
Energielabel: Energieklasse A+++
Kosten
Huurprijs (netto): € 682,96
Servicekosten: € 27,20
Huurprijs (bruto): € 710,16
Indeling
Slaapkamer-1: 10.70 m2
Woonkamer/keuken-1: 23.30 m2
Schuur-1: 5.00 m2
Badkamer-1: 3.20 m2
Berging-1: 2.40 m2

Totale oppervlakte: 44.60 m2


Deze woning is voorzien van zonnepanelen.


Elektrisch koken van toepassing: koken met gas niet mogelijk.

Kennismakingsgesprek
Er vindt een kennismakingsgesprek plaats op Het Woonplein.


Indien u in aanmerking komt voor een huurwoning heeft u een inkomensverklaring nodig van de belastingdienst van uzelf en indien van toepassing van uw partner over het jaar 2023/2024 of een definitieve of voorlopig aanslagbiljet over het jaar 2023/2024. Om teleurstelling bij toewijzing te voorkomen adviseren wij u in verband met de levertijd nu al deze inkomensverklaring aan te vragen bij de belastingdienst tel. 0800-0543. Bij toewijzing wordt geen uitstel verleend voor het aanvragen van een inkomensverklaring.


 
 
REAGEREN
U moet eerst inloggen om te kunnen reageren. Heeft u nog geen account?
Schrijf u dan snel in.