Login

 
Eengezinswoning
Nachtegaalstraat 36, Den Helder
Huurprijs: € 858,24 per maand
Overgebleven tijd om te reageren
5 dagen
Aantal reacties
58
Uw positie
Onbekend
Type
Eengezinswoning
Slaapkamers
3
Bouwjaar
1953
Oppervlakte
62.8 m2
housePhoto
housePhoto
housePhoto
housePhoto
Woningkenmerken
Berging extern
Tuin
Verwarming & energie
Elektrisch koken
Zonnepanelen
CV combiketel
Extra’s
Thermostatische douchekraan

Beschrijving

Advertentie
Advertentienummer: 2026012717
Methode Toewijzen: Zoekrecht
Verwachte verhuurdatum: 10 maart 2026
Reageren t/m: 02 februari 2026
Corporatie:
Details
Betreft: Eengezinswoning
Type woning: Eengezinswoning
Energielabel: Energieklasse B
Kosten
Huurprijs (netto): € 850,43
Servicekosten: € 7,81
Huurprijs (bruto): € 858,24
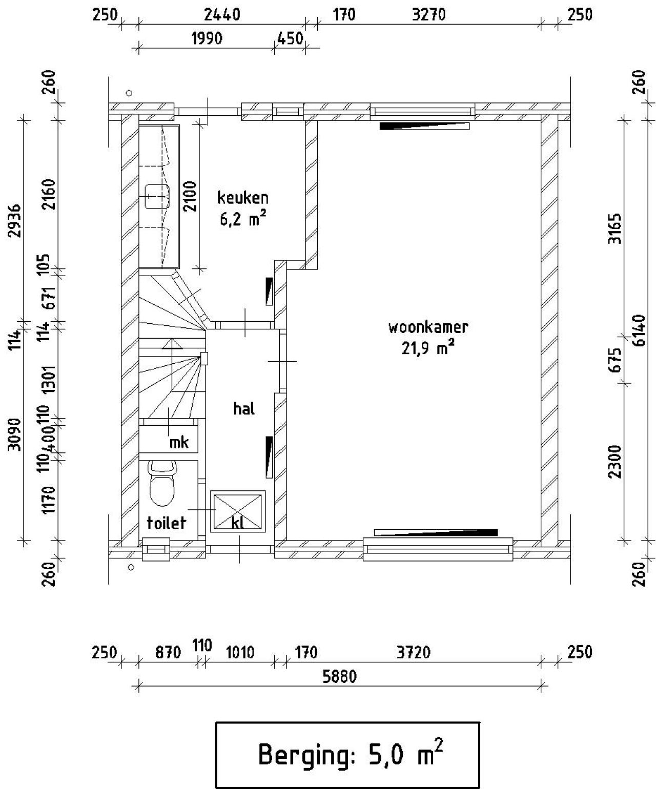
Indeling
Slaapkamer-1: 11.20 m2
Slaapkamer-2: 11.10 m2
Woonkamer-1: 21.90 m2
Keuken-1: 6.20 m2
Badkamer-1: 3.40 m2
Berging-1: 5.00 m2
Slaapkamer-3: 4.00 m2

Totale oppervlakte: 62.80 m2


Elektrisch koken 

Elektrisch koken van toepassing: koken met gas niet mogelijk.


Zonnepanelen

Deze woning is voorzien van zonnepanelen.


Aanvragen inkomensverklaring

Indien u in aanmerking komt voor een huurwoning heeft u een inkomensverklaring nodig van de Belastingdienst van uzelf en indien van toepassing van uw partner over het jaar 2024/2025 of een definitieve of voorlopig aanslagbiljet over het jaar 2024/2025.

Om teleurstelling bij toewijzing te voorkomen adviseren wij u in verband met de levertijd nu al deze inkomensverklaring aan te vragen bij de Belastingdienst tel. 0800-0543. Bij toewijzing wordt geen uitstel verleend voor het aanvragen van een inkomensverklaring.


 
 
REAGEREN
U moet eerst inloggen om te kunnen reageren. Heeft u nog geen account?
Schrijf u dan snel in.