Login

 
Eengezinswoning
Merelstraat 8, Den Helder
Huurprijs: € 976,86 per maand
Overgebleven tijd om te reageren
5 dagen
Aantal reacties
16
Uw positie
Onbekend
Type
Eengezinswoning
Slaapkamers
3
Bouwjaar
1950
Oppervlakte
87.3 m2
housePhoto
housePhoto
housePhoto
housePhoto
Woningkenmerken
Berging extern
Tuin
Verwarming & energie
Elektrisch koken
Zonnepanelen
CV combiketel
Extra’s
Thermostatische douchekraan
Vlizotrap naar bergzolder

Beschrijving

Advertentie
Advertentienummer: 2025110306
Methode Toewijzen: Zoekrecht
Verwachte verhuurdatum: 20 januari 2026
Reageren t/m: 09 november 2025
Corporatie:
Details
Betreft: Eengezinswoning
Type woning: Eengezinswoning
Energielabel: Energieklasse A
Kosten
Huurprijs (netto): € 969,05
Servicekosten: € 7,81
Huurprijs (bruto): € 976,86
Indeling
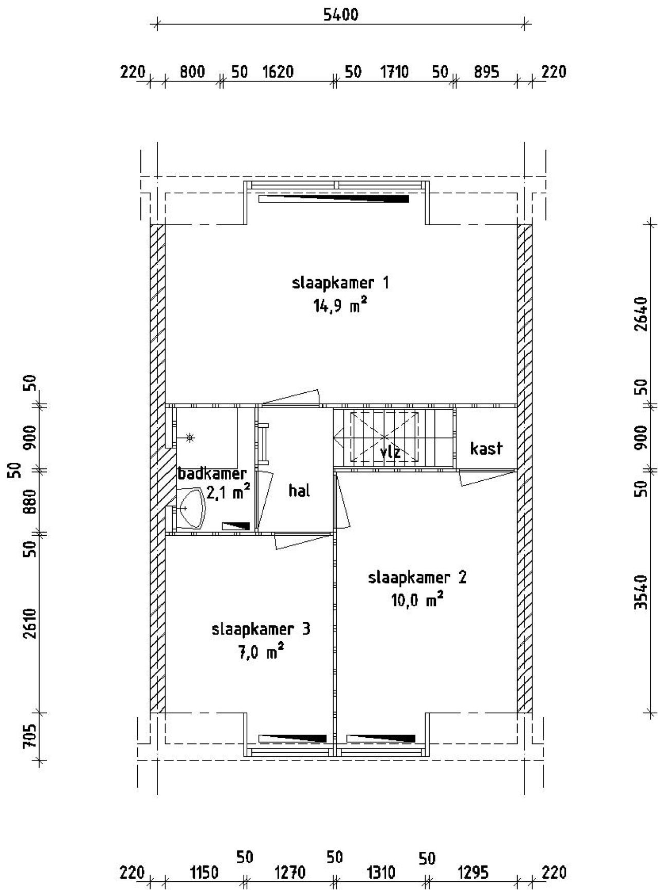
Slaapkamer-1: 14.90 m2
Slaapkamer-2: 10.00 m2
Woonkamer-1: 28.00 m2
Keuken-1: 6.70 m2
Badkamer-1: 2.10 m2
Berging-1: 4.50 m2
Zolder-1: 14.10 m2
Slaapkamer-3: 7.00 m2

Totale oppervlakte: 87.30 m2


Deze woning is voorzien van zonnepanelen.


Elektrisch koken van toepassing: koken met gas niet mogelijk.


Indien u in aanmerking komt voor een huurwoning heeft u een inkomensverklaring nodig van de belastingdienst van uzelf en indien van toepassing van uw partner over het jaar 2023/2024 of een definitieve of voorlopig aanslagbiljet over het jaar 2023/2024. Om teleurstelling bij toewijzing te voorkomen adviseren wij u in verband met de levertijd nu al deze inkomensverklaring aan te vragen bij de belastingdienst tel. 0800-0543. Bij toewijzing wordt geen uitstel verleend voor het aanvragen van een inkomensverklaring.


 
 
REAGEREN
U moet eerst inloggen om te kunnen reageren. Heeft u nog geen account?
Schrijf u dan snel in.