Login

 
Eengezinswoning
Molenplantsoen 5, Den Helder
Huurprijs: € 907,88 per maand
Overgebleven tijd om te reageren
6 dagen
Aantal reacties
35
Uw positie
Onbekend
Type
Eengezinswoning
Slaapkamers
2
Bouwjaar
2024
Oppervlakte
73.5 m2
housePhoto
housePhoto
housePhoto
housePhoto
housePhoto
housePhoto
housePhoto
housePhoto
housePhoto
housePhoto

Voorwaarden en/of vereisten

Aantal personen in uw huishouden
Voor deze woning geldt een minimale of maximale huishoudgrootte. Voor uw huishoudgrootte tellen u, uw eventuele partner, uw eventuele kinderen, en eventuele andere inwonende bewoners mee.
Maximaal 4 person(en) (Verplicht)
Woningkenmerken
Berging intern
Tuin
Verwarming & energie
Aardgasvrije woning
Elektrisch koken
Warmtepomp
Energieneutraal
Vloerverwarming
Zonnepanelen
Extra’s
Vrijhangend toilet
Hekwerk rond tuin
Thermostatische douchekraan
Extra toilet in badkamer
Vlizotrap naar bergzolder

Beschrijving

Prachtige nieuwbouwwoning naast de molen.

Duurzaam woongenot: gasloos, vloerverwarming, zonnepanelen en een warmtepomp.

Let op er zal later nog een hekwerk (erfafscheiding) geplaatst worden.

Advertentie
Advertentienummer: 2025110505
Methode Toewijzen: Zoekrecht
Verwachte verhuurdatum: 12 november 2025
Reageren t/m: 11 november 2025
Corporatie:
Details
Betreft: Eengezinswoning
Type woning: Eengezinswoning
Energielabel: Energieklasse A+++
Kosten
Huurprijs (netto): € 900,07
Servicekosten: € 7,81
Huurprijs (bruto): € 907,88
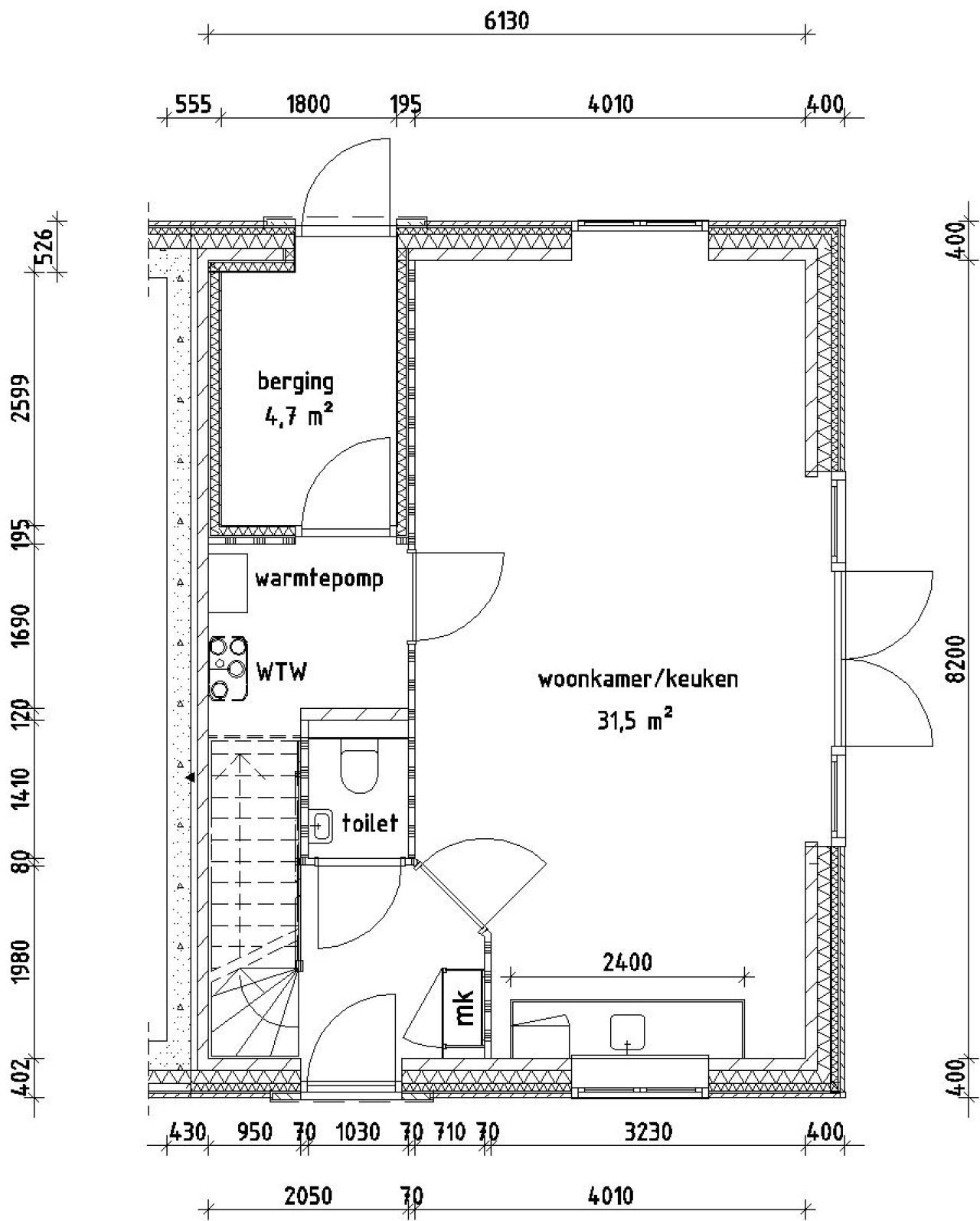
Indeling
Slaapkamer-1: 14.50 m2
Woonkamer/keuken-1: 31.50 m2
Slaapkamer-2: 17.00 m2
Badkamer-1: 5.80 m2
Berging-1: 4.70 m2

Totale oppervlakte: 73.50 m2


Deze woning is voorzien van zonnepanelen.


Elektrisch koken van toepassing: koken met gas niet mogelijk.


Indien u in aanmerking komt voor een huurwoning heeft u een inkomensverklaring nodig van de belastingdienst van uzelf en indien van toepassing van uw partner over het jaar 2023/2024 of een definitieve of voorlopig aanslagbiljet over het jaar 2023/2024. Om teleurstelling bij toewijzing te voorkomen adviseren wij u in verband met de levertijd nu al deze inkomensverklaring aan te vragen bij de belastingdienst tel. 0800-0543. Bij toewijzing wordt geen uitstel verleend voor het aanvragen van een inkomensverklaring.


 
 
REAGEREN
U moet eerst inloggen om te kunnen reageren. Heeft u nog geen account?
Schrijf u dan snel in.