Login

 
Eengezinswoning
Billitonstraat 12, Den Helder
Huurprijs: € 1.018,36 per maand
Overgebleven tijd om te reageren
3 dagen
Aantal reacties
36
Uw positie
Onbekend
Type
Eengezinswoning
Slaapkamers
3
Bouwjaar
1948
Oppervlakte
95.2 m2
housePhoto
housePhoto
housePhoto
housePhoto
Woningkenmerken
Grote tuin
Berging extern
Verwarming & energie
Elektrisch koken
Zonnepanelen
CV combiketel
Extra’s
Thermostatische douchekraan
Vaste trap naar zolder

Beschrijving

Advertentie
Advertentienummer: 2025112710
Methode Toewijzen: Zoekrecht
Verwachte verhuurdatum: 26 februari 2026
Reageren t/m: 03 december 2025
Corporatie:
Details
Betreft: Eengezinswoning
Type woning: Eengezinswoning
Energielabel: Energieklasse A
Kosten
Huurprijs (netto): € 997,89
Servicekosten: € 20,47
Huurprijs (bruto): € 1.018,36
Indeling
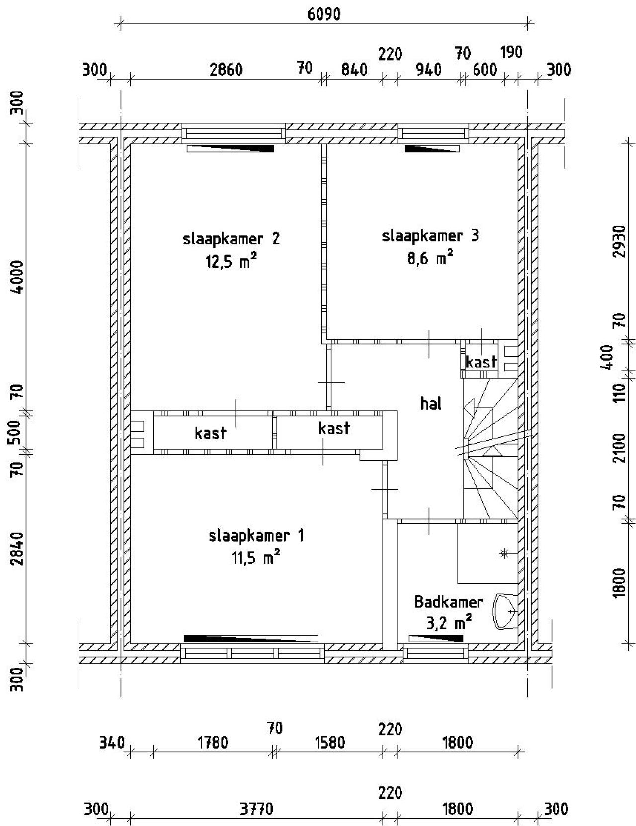
Slaapkamer-1: 11.50 m2
Slaapkamer-2: 12.50 m2
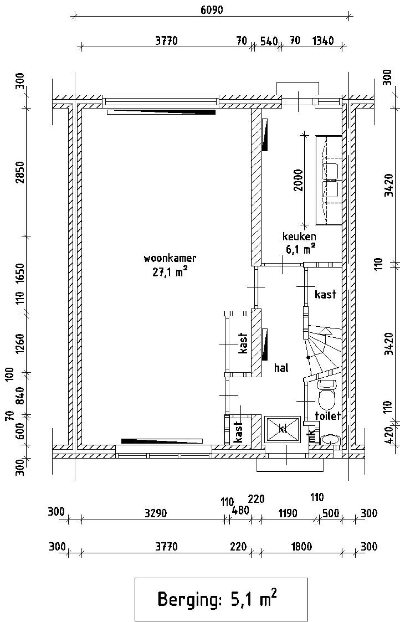
Woonkamer-1: 27.10 m2
Keuken-1: 6.10 m2
Badkamer-1: 3.20 m2
Berging-1: 5.10 m2
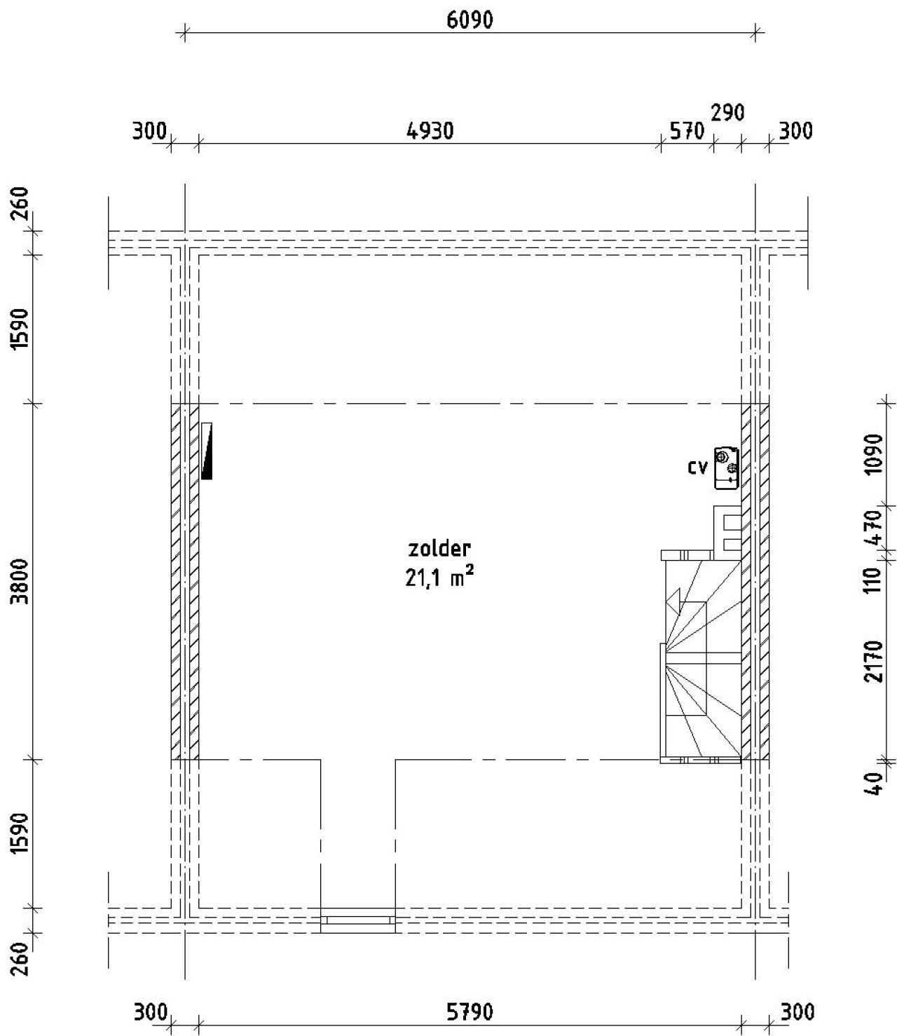
Zolder-1: 21.10 m2
Slaapkamer-3: 8.60 m2

Totale oppervlakte: 95.20 m2


Elektrisch koken

Elektrisch koken van toepassing: koken met gas niet mogelijk.


Zonnepanelen

Deze woning is voorzien van zonnepanelen.


Aanvragen Inkomensverklaring

Indien u in aanmerking komt voor een huurwoning heeft u een inkomensverklaring nodig van de Belastingdienst van uzelf en indien van toepassing van uw partner over het jaar 2024/2025 of een definitieve of voorlopig aanslagbiljet over het jaar 2024/2025.

Om teleurstelling bij toewijzing te voorkomen adviseren wij u in verband met de levertijd nu al deze inkomensverklaring aan te vragen bij de Belastingdienst tel. 0800-0543. Bij toewijzing wordt geen uitstel verleend voor het aanvragen van een inkomensverklaring.


 
 
REAGEREN
U moet eerst inloggen om te kunnen reageren. Heeft u nog geen account?
Schrijf u dan snel in.