Login

 
Seniorenwoning
Patrijzenweg 18, Callantsoog
Huurprijs: € 703,90 per maand
Overgebleven tijd om te reageren
6 dagen
Aantal reacties
8
Uw positie
Onbekend
Type
Seniorenwoning
Slaapkamers
2
Bouwjaar
1992
Oppervlakte
81 m2
housePhoto
housePhoto
housePhoto
housePhoto
housePhoto
housePhoto
housePhoto
housePhoto
housePhoto
housePhoto
housePhoto
housePhoto
housePhoto
housePhoto
housePhoto
housePhoto
housePhoto
housePhoto
housePhoto
housePhoto
housePhoto
housePhoto

Voorwaarden en/of vereisten

Aantal personen in uw huishouden
Voor deze woning geldt een minimale of maximale huishoudgrootte. Voor uw huishoudgrootte tellen u, uw eventuele partner, uw eventuele kinderen, en eventuele andere inwonende bewoners mee.
Maximaal 2 person(en) (Verplicht)
Eisen aan de leeftijd
Voor deze woning geldt een minimale, of maximale leeftijd
Minimaal 65 jaar (Verplicht)
Woningkenmerken
Levensloopbestendig
Gelijkvloers
Open keuken
Verwarming & energie
Warmtepomp
Elektrisch koken
Zonnepanelen
Dubbel glas
Extra’s
Thermostatische douchekraan
Niet standaard keuken

Beschrijving

Mooi appartement in gezellig seniorencomplex.

Kenmerken

- Slaapkamer en badkamer op de begane grond

- Ruime slaapkamer/hobbykamer op de eerste verdieping

- Gezamenlijke binnentuin

- Geen eigen berging, alleen gezamenlijke fietsenberging

- Gezellige koffieruimte waar de bewoners vaak zitten en veel activiteiten worden georganiseerd

- O.a. laminaat, kookplaat en afzuigkap ter overname

 

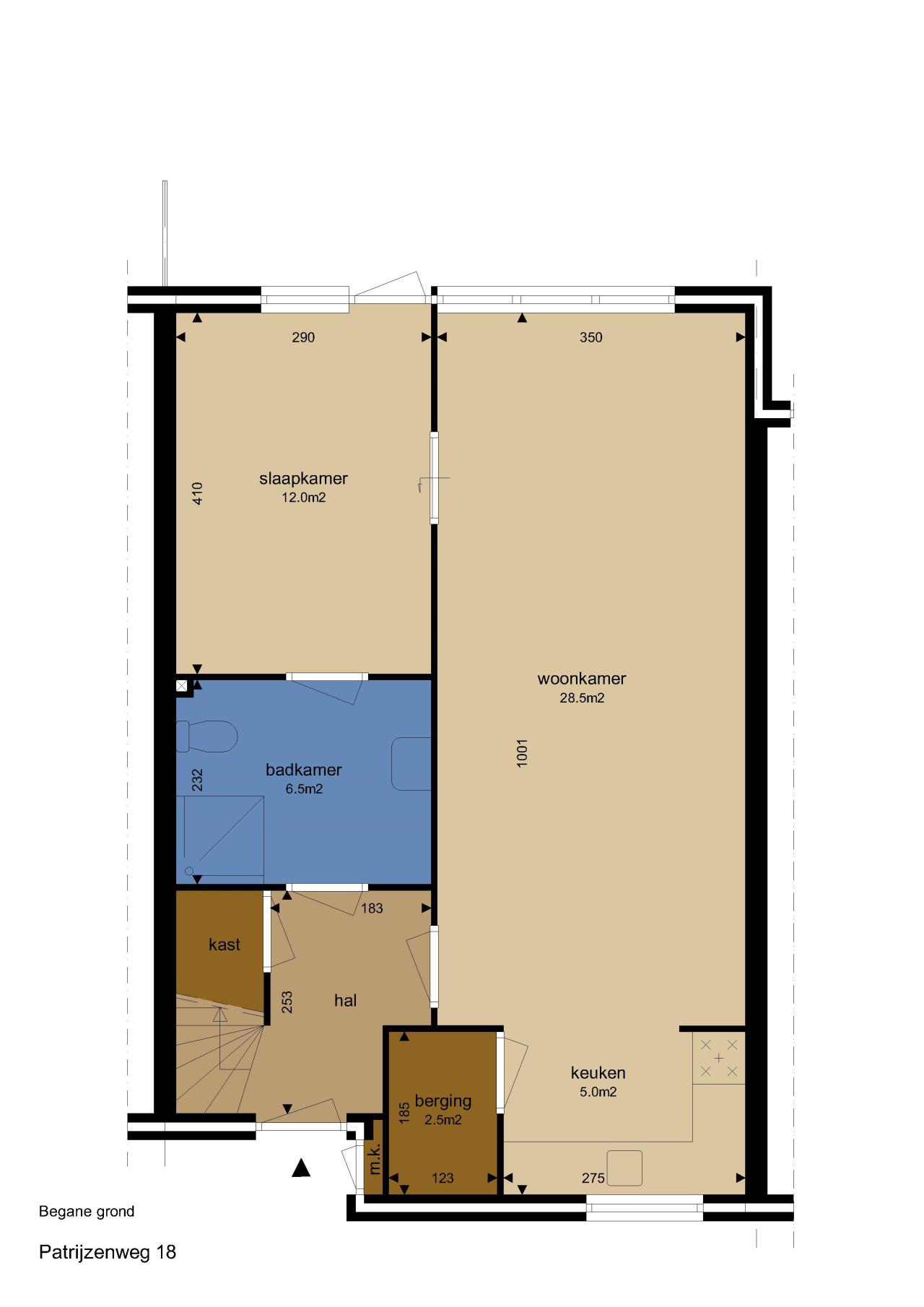
Plattegrond en overige documenten
Afbeelding
Afbeelding
Advertentie
Advertentienummer: 2025111910
Methode Toewijzen: Zoekrecht met Voorrangsregels
Verwachte verhuurdatum: 19 december 2025
Reageren t/m: 25 november 2025
Corporatie:
Details
Betreft: Seniorenwoning
Type woning: Seniorenwoning
Energielabel: Energieklasse X
Kosten
Huurprijs (netto): € 650,00
Servicekosten: € 53,90
Huurprijs (bruto): € 703,90
Indeling
Slaapkamer-1: 12.00 m2
Slaapkamer-2: 26.50 m2
Woonkamer-1: 33.50 m2
Badkamer-1: 6.50 m2
Berging-1: 2.50 m2

Totale oppervlakte: 81.00 m2

Voorrang doorstromer gem. Schagen


Indexering inkomen Bij de controle van het inkomen wordt het inkomen omgerekend naar het huidige jaar. Zie voor meer informatie over de indexatie klik hier

 


Elektrisch koken in de woning van toepassing. Perilex aansluiting, 2 fase. Koken op gas in de woning niet mogelijk. Nieuwe huurder dient zelf zorg te dragen voor kookplaat.


Let op! Wooncompagnie wijst haar woningen toe op basis van Europese regelgeving en de wettelijke passendheidsnorm. Zonder een recente inkomensverklaring van de Belastingdienst, wijzen wij geen huurwoning toe. Wij verlenen geen uitstel maar wijzen de woning toe aan de volgende kandidaat. Om teleurstelling te voorkomen kunt u nu al een inkomensverklaring aanvragen bij de Belastingdienst (tel: 0800- 0543 of digitaal via Mijn Belastingdienst).

De opleverdatum is onder voorbehoud.


Voorrang voor Doorstromers uit gemeente Schagen
Bij deze advertentie hebben Doorstromers die op dit moment in de gemeente Schagen wonen voorrang op andere woningzoekenden. Een Doorstromer is iemand die op dit moment in een huurwoning van Wooncompagnie, Woningstichting Anna Paulowna, Woonzorg of Woningstichting Den Helder woont en deze bij een verhuizing leeg achter laat. Woont u wel in gemeente Schagen, maar bent u geen Doorstromer? Dan heeft u wel voorrang op mensen die niet in gemeente Schagen wonen.

 
 
REAGEREN
U moet eerst inloggen om te kunnen reageren. Heeft u nog geen account?
Schrijf u dan snel in.