Login

 
Eengezinswoning
Havikstraat 7, Den Helder
Huurprijs: € 894,63 per maand
Overgebleven tijd om te reageren
6 dagen
Aantal reacties
10
Uw positie
Onbekend
Type
Eengezinswoning
Slaapkamers
3
Bouwjaar
1934
Oppervlakte
74.6 m2
housePhoto
housePhoto
housePhoto
housePhoto
Woningkenmerken
Berging extern
Tuin
Verwarming & energie
Elektrisch koken
Zonnepanelen
CV combiketel
Extra’s
Thermostatische douchekraan
Vaste trap naar zolder

Beschrijving

Advertentie
Advertentienummer: 2025120102
Methode Toewijzen: Zoekrecht
Verwachte verhuurdatum: 19 maart 2026
Reageren t/m: 07 december 2025
Corporatie:
Details
Betreft: Eengezinswoning
Type woning: Eengezinswoning
Energielabel: Energieklasse A
Kosten
Huurprijs (netto): € 886,82
Servicekosten: € 7,81
Huurprijs (bruto): € 894,63
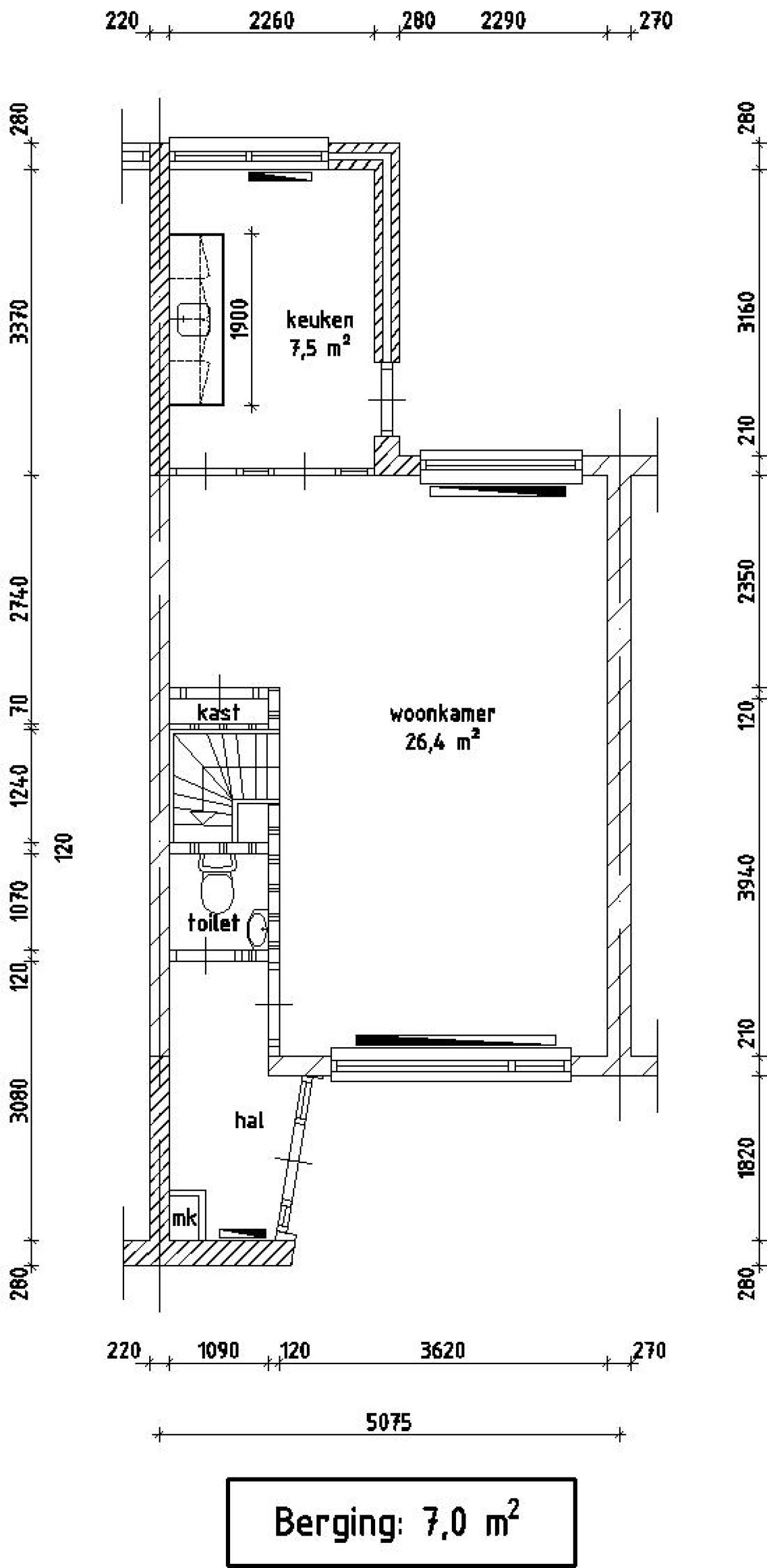
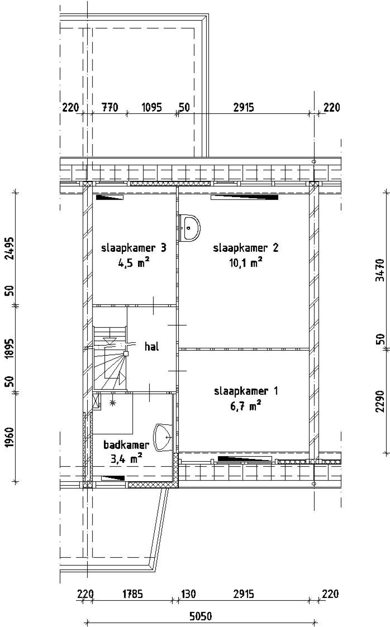
Indeling
Slaapkamer-1: 10.10 m2
Slaapkamer-2: 6.70 m2
Woonkamer-1: 26.40 m2
Keuken-1: 7.50 m2
Badkamer-1: 3.40 m2
Berging-1: 7.00 m2
Zolder-1: 9.00 m2
Slaapkamer-3: 4.50 m2

Totale oppervlakte: 74.60 m2


Elektrisch koken 

Elektrisch koken van toepassing: koken met gas niet mogelijk.


Zonnepanelen

Deze woning is voorzien van zonnepanelen.


Aanvragen inkomensverklaring

Indien u in aanmerking komt voor een huurwoning heeft u een inkomensverklaring nodig van de Belastingdienst van uzelf en indien van toepassing van uw partner over het jaar 2024/2025 of een definitieve of voorlopig aanslagbiljet over het jaar 2024/2025.

Om teleurstelling bij toewijzing te voorkomen adviseren wij u in verband met de levertijd nu al deze inkomensverklaring aan te vragen bij de Belastingdienst tel. 0800-0543. Bij toewijzing wordt geen uitstel verleend voor het aanvragen van een inkomensverklaring.


 
 
REAGEREN
U moet eerst inloggen om te kunnen reageren. Heeft u nog geen account?
Schrijf u dan snel in.