Login

 
Eengezinswoning
Olivier van Noortstraat 69, Den Helder
Huurprijs: € 768,43 per maand
Overgebleven tijd om te reageren
6 dagen
Aantal reacties
85
Uw positie
Onbekend
Type
Eengezinswoning
Slaapkamers
3
Bouwjaar
1950
Oppervlakte
74.1 m2
housePhoto
housePhoto
housePhoto
housePhoto
Woningkenmerken
Berging extern
Open keuken
Tuin
Verwarming & energie
Elektrisch koken
Zonnepanelen
CV combiketel
Extra’s
Thermostatische douchekraan
Vlizotrap naar bergzolder

Beschrijving

Advertentie
Advertentienummer: 2026030403
Methode Toewijzen: Zoekrecht
Verwachte verhuurdatum: 11 mei 2026
Reageren t/m: 10 maart 2026
Corporatie:
Details
Betreft: Eengezinswoning
Type woning: Eengezinswoning
Energielabel: Energieklasse C
Kosten
Huurprijs (netto): € 760,62
Servicekosten: € 7,81
Huurprijs (bruto): € 768,43
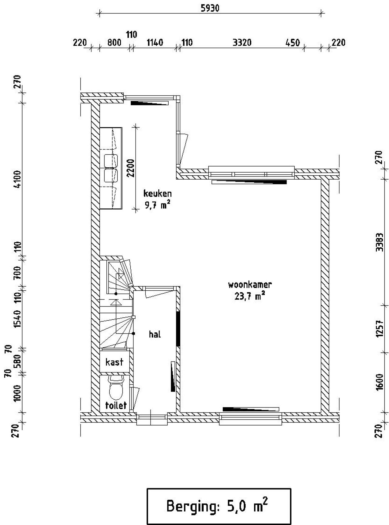
Indeling
Slaapkamer-1: 11.60 m2
Slaapkamer-2: 11.00 m2
Woonkamer-1: 23.70 m2
Keuken-1: 9.70 m2
Badkamer-1: 3.70 m2
Berging-1: 5.00 m2
Zolder-1: 4.60 m2
Slaapkamer-3: 4.80 m2

Totale oppervlakte: 74.10 m2


Elektrisch koken

Elektrisch koken van toepassing: koken met gas niet mogelijk.


Zonnepanelen

Deze woning is voorzien van zonnepanelen.


Aanvragen Inkomensverklaring

Indien u in aanmerking komt voor een huurwoning heeft u een inkomensverklaring nodig van de Belastingdienst van uzelf en indien van toepassing van uw partner over het jaar 2024/2025 of een definitieve of voorlopig aanslagbiljet over het jaar 2024/2025.

Om teleurstelling bij toewijzing te voorkomen adviseren wij u in verband met de levertijd nu al deze inkomensverklaring aan te vragen bij de Belastingdienst tel. 0800-0543. Bij toewijzing wordt geen uitstel verleend voor het aanvragen van een inkomensverklaring.


 
 
REAGEREN
U moet eerst inloggen om te kunnen reageren. Heeft u nog geen account?
Schrijf u dan snel in.