Login

 
Eengezinswoning met annex
Adriaan de Grootstraat 91, Den Helder
Huurprijs: € 771,95 per maand
Overgebleven tijd om te reageren
5 dagen
Aantal reacties
108
Uw positie
Onbekend
Type
Eengezinswoning met annex
Slaapkamers
4
Bouwjaar
1966
Oppervlakte
90.8 m2
housePhoto
housePhoto
housePhoto
housePhoto

Voorwaarden en/of vereisten

Aantal personen in uw huishouden
Voor deze woning geldt een minimale of maximale huishoudgrootte. Voor uw huishoudgrootte tellen u, uw eventuele partner, uw eventuele kinderen, en eventuele andere inwonende bewoners mee.
Minimaal 3 person(en)
Woningkenmerken
Garage
Tuin
Verwarming & energie
Elektrisch koken
Zonnepanelen
CV combiketel
Extra’s
Vrijhangend toilet
Thermostatische douchekraan

Beschrijving

Advertentie
Advertentienummer: 2026011306
Methode Toewijzen: Zoekrecht
Verwachte verhuurdatum: 29 juni 2026
Reageren t/m: 19 januari 2026
Corporatie:
Details
Betreft: Eengezinswoning met annex
Type woning: Eengezinswoning met annex
Energielabel: Energieklasse A
Kosten
Huurprijs (netto): € 764,14
Servicekosten: € 7,81
Huurprijs (bruto): € 771,95
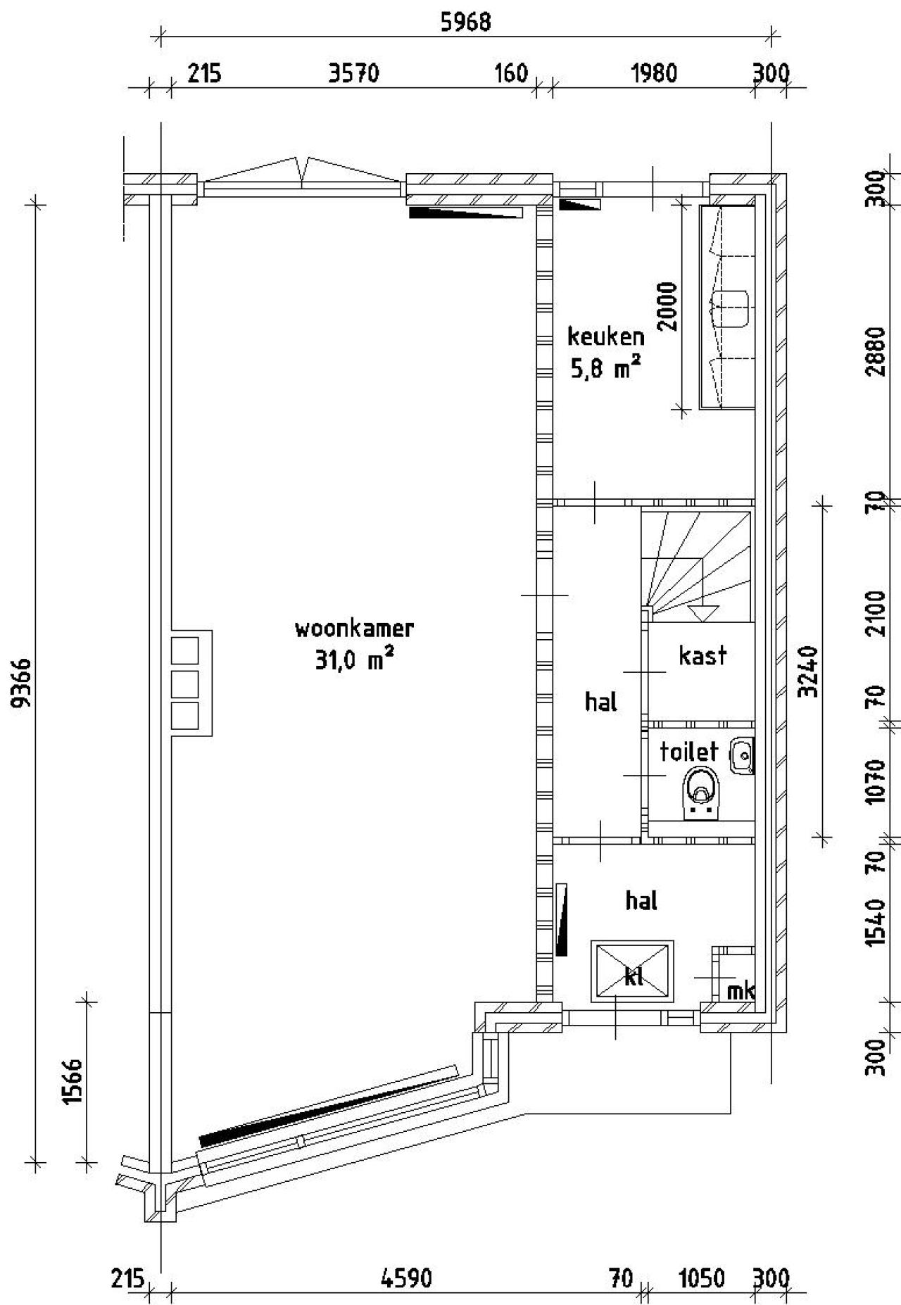
Indeling
Slaapkamer-1: 10.80 m2
Slaapkamer-2: 9.90 m2
Garage-1: 18.00 m2
Woonkamer-1: 31.00 m2
Slaapkamer-4: 5.30 m2
Keuken-1: 5.80 m2
Badkamer-1: 4.30 m2
Slaapkamer-3: 5.70 m2

Totale oppervlakte: 90.80 m2


Elektrisch koken 

Elektrisch koken van toepassing: koken met gas niet mogelijk.

Voorkeur meerpersoonshuishoudens
Deze woning wordt bij voorkeur verhuurd aan een huishouden van minimaal 3 personen. Overige huishoudens kunnen wel reageren maar komen op een wachtlijst. Huishoudens op de wachtlijst worden geselecteerd als er geen huishoudens van minimaal 3 personen beschikbaar zijn.


Kandidaten verliezen door het huren van een garage, parkeerplaats of kelderbox niet hun inschrijfrechten. Het zoekendenummer blijft na acceptatie actief.


Aanvragen inkomensverklaring

Indien u in aanmerking komt voor een huurwoning heeft u een inkomensverklaring nodig van de Belastingdienst van uzelf en indien van toepassing van uw partner over het jaar 2024/2025 of een definitieve of voorlopig aanslagbiljet over het jaar 2024/2025.

Om teleurstelling bij toewijzing te voorkomen adviseren wij u in verband met de levertijd nu al deze inkomensverklaring aan te vragen bij de Belastingdienst tel. 0800-0543. Bij toewijzing wordt geen uitstel verleend voor het aanvragen van een inkomensverklaring.


 
 
REAGEREN
U moet eerst inloggen om te kunnen reageren. Heeft u nog geen account?
Schrijf u dan snel in.