Login

 
Appartement Begane grond
Fregatstraat 97, Den Helder
Huurprijs: € 359,17 per maand
Overgebleven tijd om te reageren
4 dagen
Aantal reacties
200
Uw positie
Onbekend
Type
Appartement Beg grond
Slaapkamers
1
Bouwjaar
1963
Oppervlakte
47.7 m2
housePhoto
housePhoto

Voorwaarden en/of vereisten

Aantal personen in uw huishouden
Voor deze woning geldt een minimale of maximale huishoudgrootte. Voor uw huishoudgrootte tellen u, uw eventuele partner, uw eventuele kinderen, en eventuele andere inwonende bewoners mee.
Maximaal 2 person(en) (Verplicht)
Woningkenmerken
Berging intern
Verwarming & energie
Elektrisch koken
CV combiketel
Extra’s
Intercom
Thermostatische douchekraan

Beschrijving

Advertentie
Advertentienummer: 2026010607
Methode Toewijzen: Zoekrecht
Verwachte verhuurdatum: 23 januari 2026
Reageren t/m: 12 januari 2026
Corporatie:
Details
Betreft: Appartement Begane grond
Type woning: Appartement Beg grond
Energielabel: Energieklasse E
Kosten
Huurprijs (netto): € 330,21
Servicekosten: € 28,96
Huurprijs (bruto): € 359,17
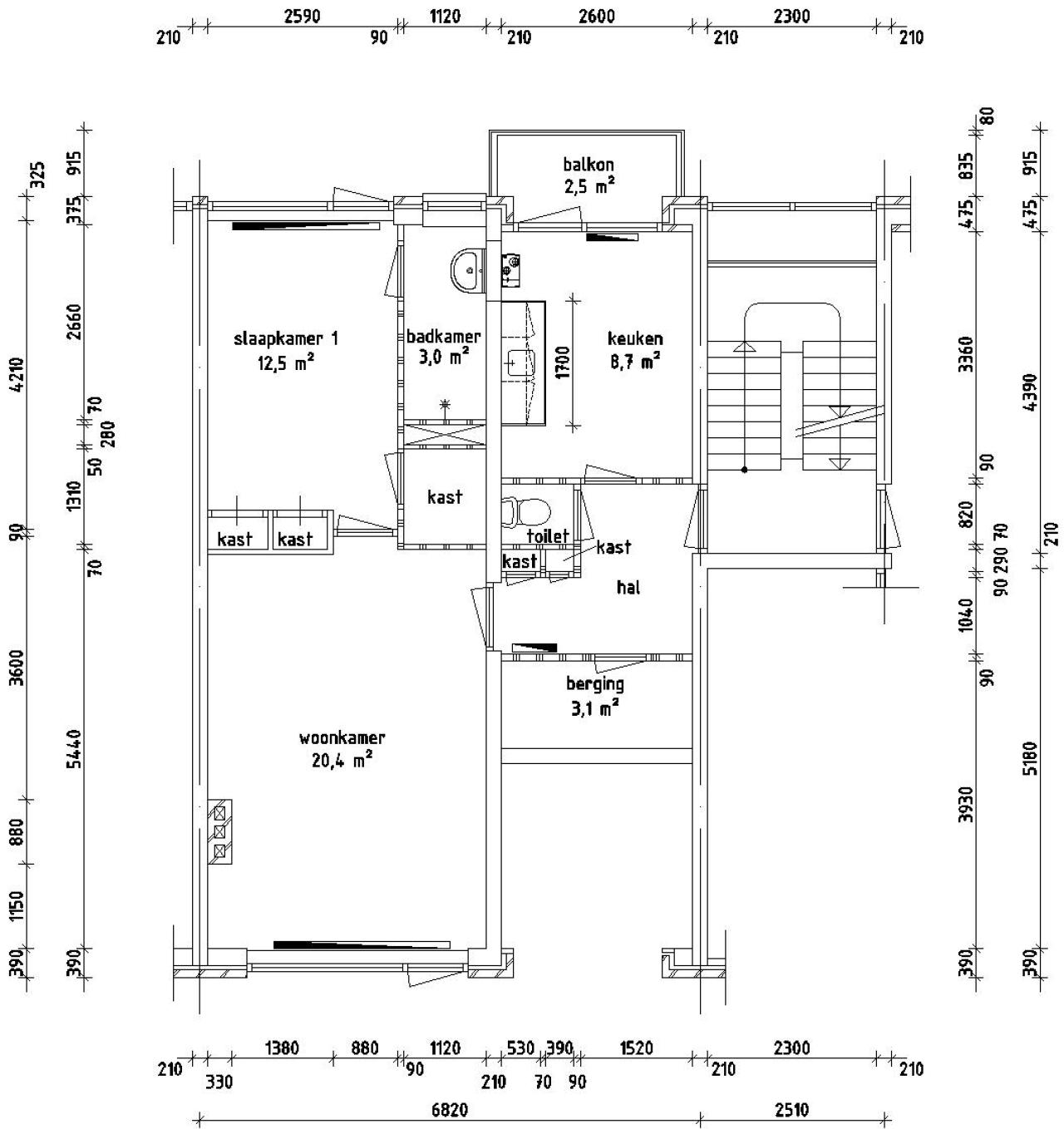
Indeling
Slaapkamer-1: 12.50 m2
Woonkamer-1: 20.40 m2
Keuken-1: 8.70 m2
Badkamer-1: 3.00 m2
Berging-1: 3.10 m2

Totale oppervlakte: 47.70 m2


Elektrisch koken 

Elektrisch koken van toepassing: koken met gas niet mogelijk.


Aanvragen inkomensverklaring

Indien u in aanmerking komt voor een huurwoning heeft u een inkomensverklaring nodig van de Belastingdienst van uzelf en indien van toepassing van uw partner over het jaar 2024/2025 of een definitieve of voorlopig aanslagbiljet over het jaar 2024/2025.

Om teleurstelling bij toewijzing te voorkomen adviseren wij u in verband met de levertijd nu al deze inkomensverklaring aan te vragen bij de Belastingdienst tel. 0800-0543. Bij toewijzing wordt geen uitstel verleend voor het aanvragen van een inkomensverklaring.


 
 
REAGEREN
U moet eerst inloggen om te kunnen reageren. Heeft u nog geen account?
Schrijf u dan snel in.