Login

 
Appartement 3e Etage
Reggestraat 24, Den Helder
Huurprijs: € 756,25 per maand
Overgebleven tijd om te reageren
6 dagen
Aantal reacties
23
Uw positie
Onbekend
Type
Appartement 3e Etage
Slaapkamers
3
Bouwjaar
1958
Oppervlakte
72.4 m2
housePhoto
housePhoto
Woningkenmerken
Balkon
Berging extern
Verwarming & energie
Elektrisch koken
Zonnepanelen
CV combiketel
Extra’s
Videofoon
Thermostatische douchekraan

Beschrijving

Advertentie
Advertentienummer: 2026021204
Methode Toewijzen: Zoekrecht
Verwachte verhuurdatum: 17 maart 2026
Reageren t/m: 18 februari 2026
Corporatie:
Details
Betreft: Appartement 3e Etage
Type woning: Appartement 3e Etage
Energielabel: Energieklasse A
Kosten
Huurprijs (netto): € 726,01
Servicekosten: € 30,24
Huurprijs (bruto): € 756,25
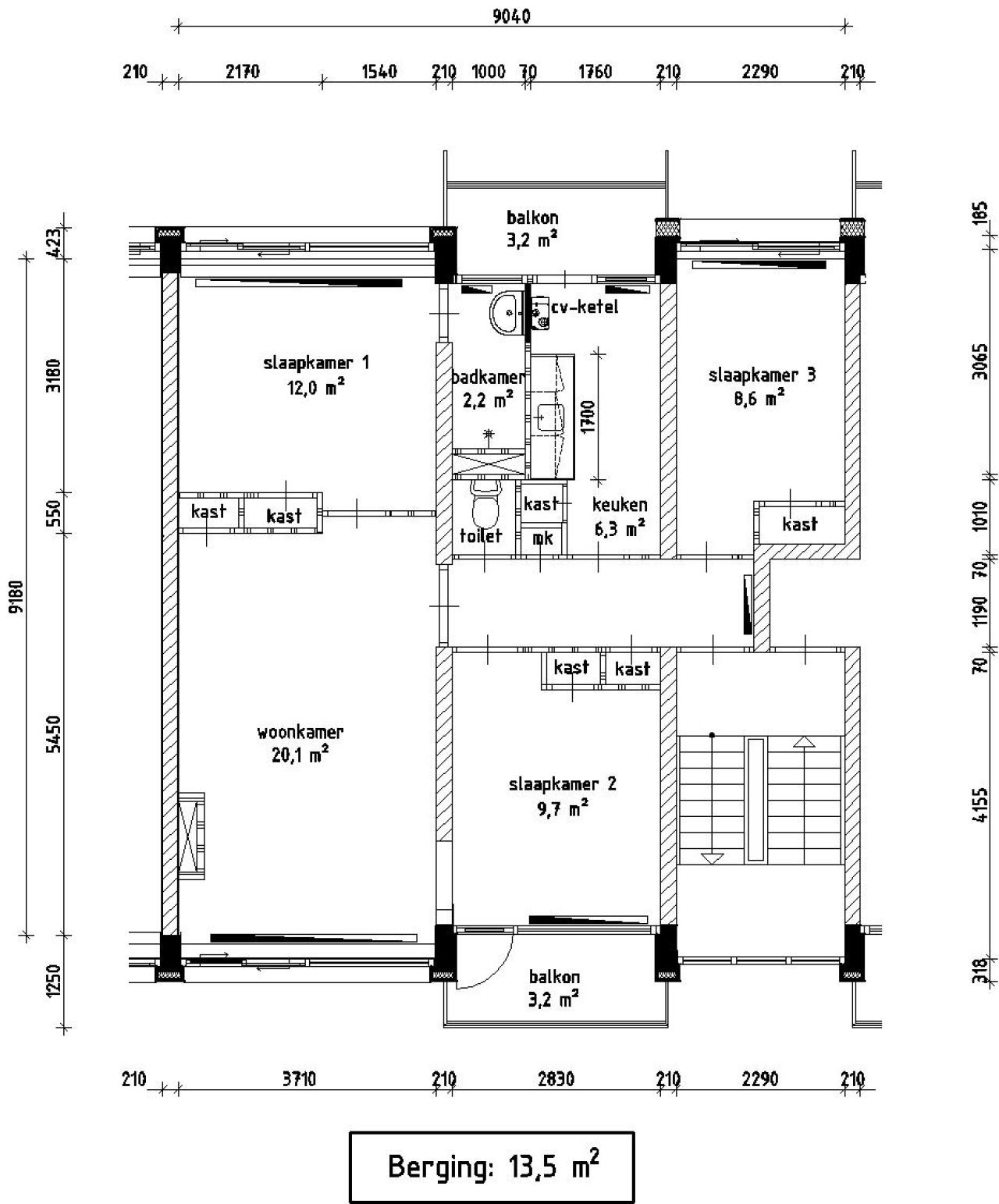
Indeling
Slaapkamer-1: 12.00 m2
Slaapkamer-2: 9.70 m2
Woonkamer-1: 20.10 m2
Keuken-1: 6.30 m2
Badkamer-1: 2.20 m2
Berging-1: 13.50 m2
Slaapkamer-3: 8.60 m2

Totale oppervlakte: 72.40 m2


Elektrisch koken 

Elektrisch koken van toepassing: koken met gas niet mogelijk.


Zonnepanelen

Deze woning is voorzien van zonnepanelen.

Korting mogelijk

Vanaf 1 januari 2026 kunnen jongeren van 18 t/m 20 jaar indien zij qua inkomen in aanmerking komen voor huurtoeslag een tijdelijke korting krijgen op de huurprijs.

Met leefregels
Bij de toewijzing van deze woning dient u akkoord te gaan met de opgestelde leefregels.


Aanvragen inkomensverklaring

Indien u in aanmerking komt voor een huurwoning heeft u een inkomensverklaring nodig van de Belastingdienst van uzelf en indien van toepassing van uw partner over het jaar 2024/2025 of een definitieve of voorlopig aanslagbiljet over het jaar 2024/2025.

Om teleurstelling bij toewijzing te voorkomen adviseren wij u in verband met de levertijd nu al deze inkomensverklaring aan te vragen bij de Belastingdienst tel. 0800-0543. Bij toewijzing wordt geen uitstel verleend voor het aanvragen van een inkomensverklaring.


 
 
REAGEREN
U moet eerst inloggen om te kunnen reageren. Heeft u nog geen account?
Schrijf u dan snel in.