Login

 
Eengezinswoning
Lijsterbesstraat 7, Den Helder
Huurprijs: € 771,95 per maand
Overgebleven tijd om te reageren
6 dagen
Aantal reacties
54
Uw positie
Onbekend
Type
Eengezinswoning
Slaapkamers
3
Bouwjaar
1953
Oppervlakte
67.4 m2
housePhoto
housePhoto
housePhoto
housePhoto
Woningkenmerken
Berging extern
Tuin
Verwarming & energie
Elektrisch koken
Zonnepanelen
CV combiketel
Extra’s
Thermostatische douchekraan
Vlizotrap naar bergzolder

Beschrijving

Advertentie
Advertentienummer: 2026032603
Methode Toewijzen: Zoekrecht
Verwachte verhuurdatum: 03 april 2026
Reageren t/m: 01 april 2026
Corporatie:
Details
Betreft: Eengezinswoning
Type woning: Eengezinswoning
Energielabel: Energieklasse A
Kosten
Huurprijs (netto): € 764,14
Servicekosten: € 7,81
Huurprijs (bruto): € 771,95
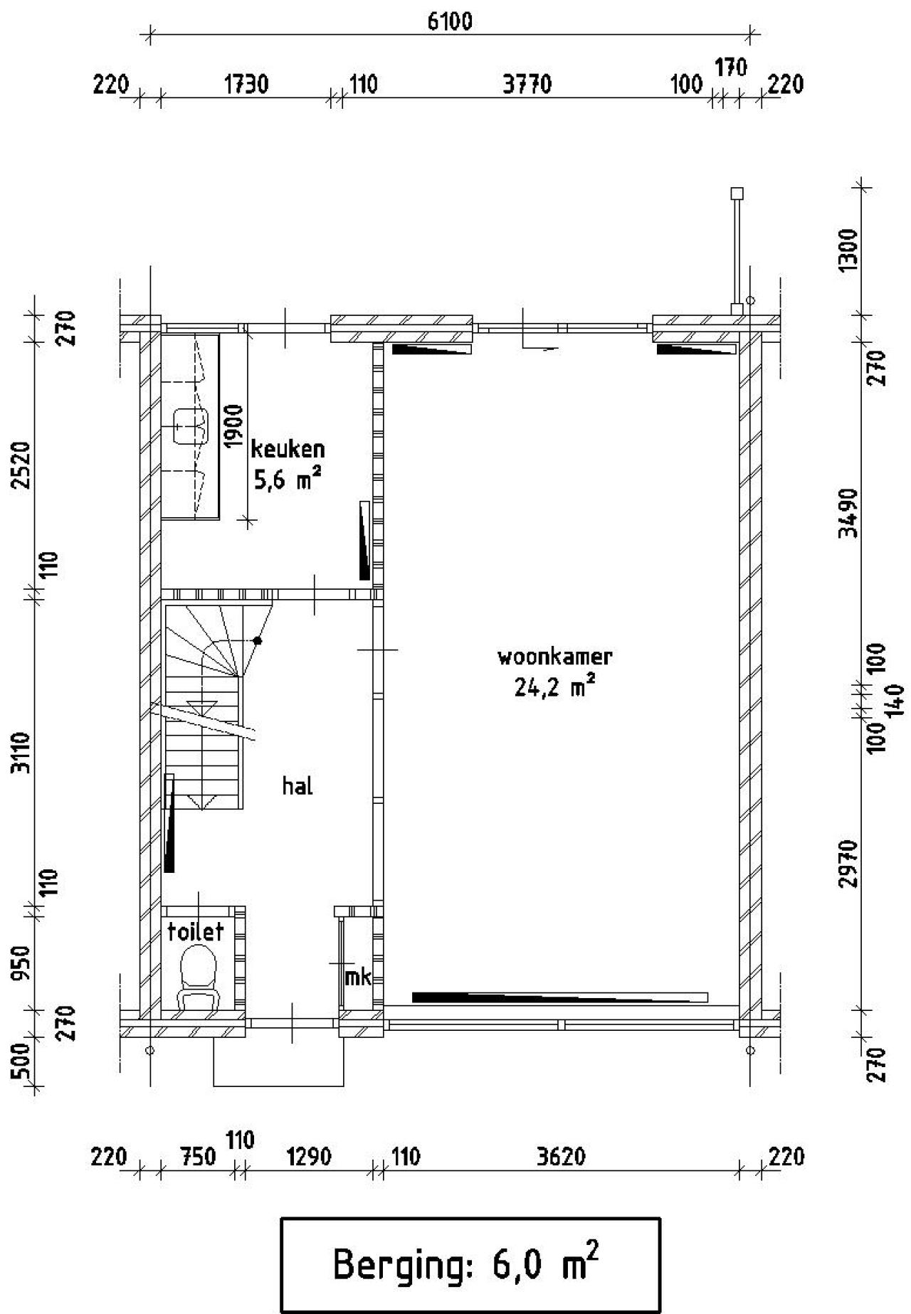
Indeling
Slaapkamer-1: 12.90 m2
Slaapkamer-2: 5.50 m2
Woonkamer-1: 24.20 m2
Keuken-1: 5.60 m2
Badkamer-1: 2.20 m2
Berging-1: 6.00 m2
Slaapkamer-3: 11.00 m2

Totale oppervlakte: 67.40 m2


Elektrisch koken 

Elektrisch koken van toepassing: koken met gas niet mogelijk.


Zonnepanelen

Deze woning is voorzien van zonnepanelen.


Aanvragen inkomensverklaring

Indien u in aanmerking komt voor een huurwoning heeft u een inkomensverklaring nodig van de Belastingdienst van uzelf en indien van toepassing van uw partner over het jaar 2024/2025 of een definitieve of voorlopig aanslagbiljet over het jaar 2024/2025.

Om teleurstelling bij toewijzing te voorkomen adviseren wij u in verband met de levertijd nu al deze inkomensverklaring aan te vragen bij de Belastingdienst tel. 0800-0543. Bij toewijzing wordt geen uitstel verleend voor het aanvragen van een inkomensverklaring.


 
 
REAGEREN
U moet eerst inloggen om te kunnen reageren. Heeft u nog geen account?
Schrijf u dan snel in.