Login

 
Appartement 5e Etage met lift
Hendrik Baskeweg 103, Den Helder
Huurprijs: € 806,40 per maand
Overgebleven tijd om te reageren
5 dagen
Aantal reacties
45
Uw positie
Onbekend
Type
Appartement 5e Etage met lift
Slaapkamers
3
Bouwjaar
1972
Oppervlakte
73.3 m2
housePhoto
housePhoto

Voorwaarden en/of vereisten

Eisen aan de leeftijd
Voor deze woning geldt een minimale, of maximale leeftijd
Minimaal 65 jaar (Verplicht)
Woningkenmerken
Balkon
Berging extern
Gelijkvloers
Lift
Verwarming & energie
Elektrisch koken
CV combiketel
Extra’s
Videofoon
Thermostatische douchekraan

Beschrijving

Advertentie
Advertentienummer: 2026011909
Methode Toewijzen: Zoekrecht
Verwachte verhuurdatum: 24 februari 2026
Reageren t/m: 25 januari 2026
Corporatie:
Details
Betreft: Appartement 5e Etage met lift
Type woning: Appartement 5e Etage met lift
Energielabel: Energieklasse A
Kosten
Huurprijs (netto): € 764,14
Servicekosten: € 42,26
Huurprijs (bruto): € 806,40
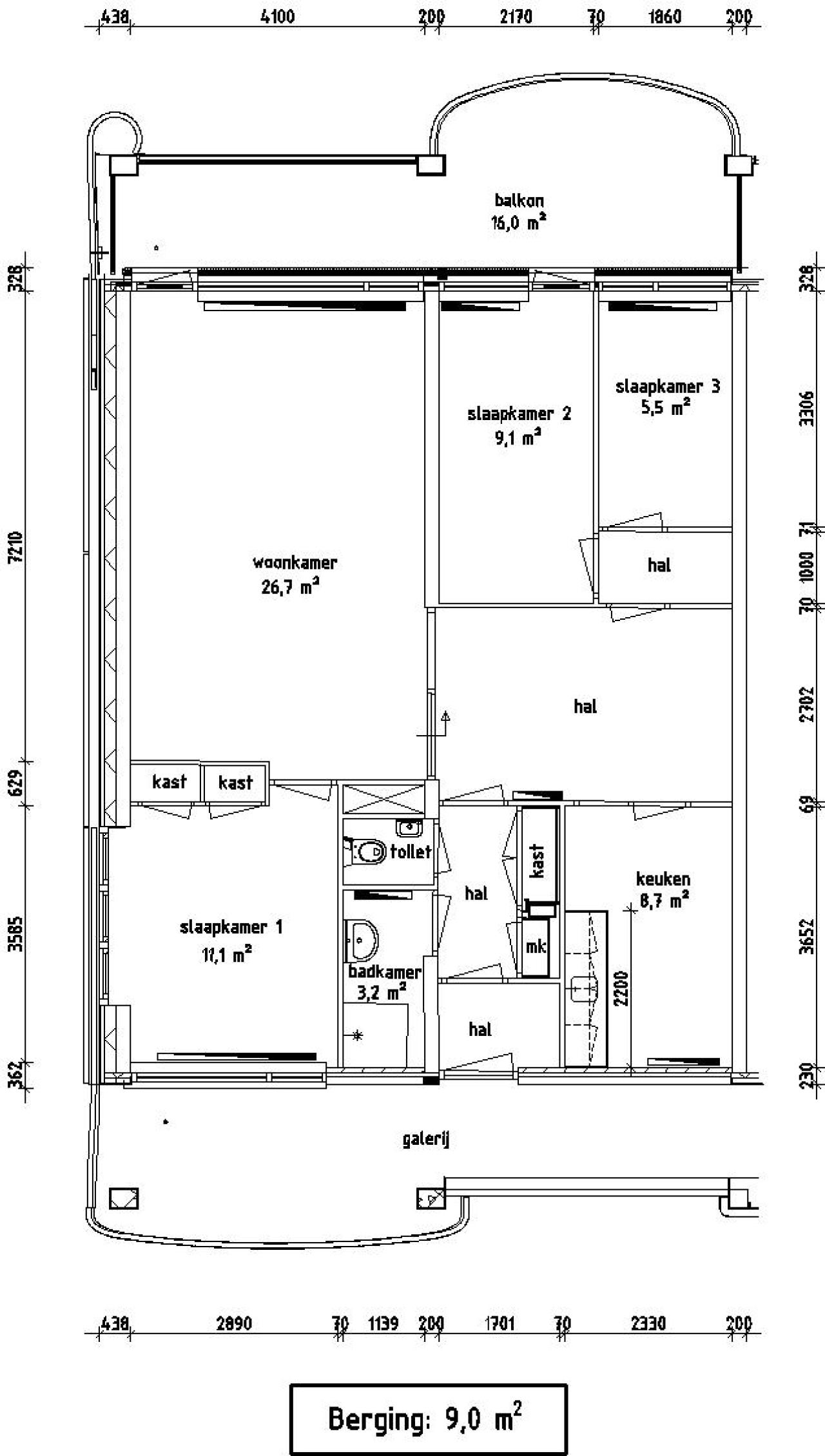
Indeling
Slaapkamer-1: 11.10 m2
Slaapkamer-2: 9.10 m2
Woonkamer-1: 26.70 m2
Keuken-1: 8.70 m2
Badkamer-1: 3.20 m2
Berging-1: 9.00 m2
Slaapkamer-3: 5.50 m2

Totale oppervlakte: 73.30 m2


Elektrisch koken 

Elektrisch koken van toepassing: koken met gas niet mogelijk.


Aanvragen inkomensverklaring

Indien u in aanmerking komt voor een huurwoning heeft u een inkomensverklaring nodig van de Belastingdienst van uzelf en indien van toepassing van uw partner over het jaar 2024/2025 of een definitieve of voorlopig aanslagbiljet over het jaar 2024/2025.

Om teleurstelling bij toewijzing te voorkomen adviseren wij u in verband met de levertijd nu al deze inkomensverklaring aan te vragen bij de Belastingdienst tel. 0800-0543. Bij toewijzing wordt geen uitstel verleend voor het aanvragen van een inkomensverklaring.


 
 
REAGEREN
U moet eerst inloggen om te kunnen reageren. Heeft u nog geen account?
Schrijf u dan snel in.