Login

 
Eengezinswoning
Fabrieksgracht 65, Den Helder
Huurprijs: € 940,74 per maand
Overgebleven tijd om te reageren
6 dagen
Aantal reacties
28
Uw positie
Onbekend
Type
Eengezinswoning
Slaapkamers
2
Bouwjaar
1913
Oppervlakte
69.7 m2
housePhoto
housePhoto
housePhoto
Woningkenmerken
Berging extern
Tuin
Verwarming & energie
Elektrisch koken
Zonnepanelen
CV combiketel
Extra’s
Thermostatische douchekraan
Extra toilet in badkamer

Beschrijving

Advertentie
Advertentienummer: 2026040211
Methode Toewijzen: Zoekrecht
Verwachte verhuurdatum: 08 mei 2026
Reageren t/m: 08 april 2026
Corporatie:
Details
Betreft: Eengezinswoning
Type woning: Eengezinswoning
Energielabel: Energieklasse C
Kosten
Huurprijs (netto): € 932,93
Servicekosten: € 7,81
Huurprijs (bruto): € 940,74
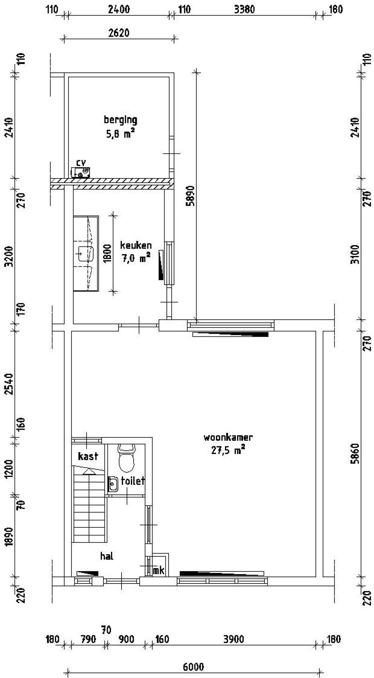
Indeling
Slaapkamer-1: 14.80 m2
Slaapkamer-2: 11.50 m2
Woonkamer-1: 27.50 m2
Keuken-1: 7.00 m2
Badkamer-1: 3.10 m2
Berging-1: 5.80 m2

Totale oppervlakte: 69.70 m2


Elektrisch koken 

Elektrisch koken van toepassing: koken met gas niet mogelijk.


Zonnepanelen

Deze woning is voorzien van zonnepanelen.


Aanvragen inkomensverklaring

Indien u in aanmerking komt voor een huurwoning heeft u een inkomensverklaring nodig van de Belastingdienst van uzelf en indien van toepassing van uw partner over het jaar 2024/2025 of een definitieve of voorlopig aanslagbiljet over het jaar 2024/2025.

Om teleurstelling bij toewijzing te voorkomen adviseren wij u in verband met de levertijd nu al deze inkomensverklaring aan te vragen bij de Belastingdienst tel. 0800-0543. Bij toewijzing wordt geen uitstel verleend voor het aanvragen van een inkomensverklaring.


 
 
REAGEREN
U moet eerst inloggen om te kunnen reageren. Heeft u nog geen account?
Schrijf u dan snel in.